外装をガラスで覆った高級感のあるハイセンスなゲート
- フラッパーゲート
- クラウド化
- 高セキュリティ
- カスタマイズ可
- 車いす通行可
『ガラス張り×LED』で洗練さと高級感を追求したゲート。
様々な施設の雰囲気を損なうことなく、よりスタイリッシュかつ上質なイメージを与えます。オフィスやミュージアムなど、高級感を演出したい施設のエントランスに最適です。
製品仕様
| 商品名 | ハイエンドゲート |
|---|---|
| 型式 | - |
| 外観材質 | ・SUS304(冷間圧縮ステンレス) ・強化ガラス |
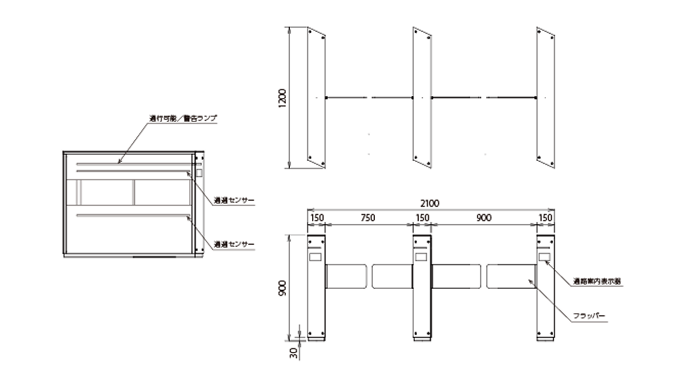
| 外形寸法 | 奥行:1,200mm 高さ:900mm 幅 :150mm |
| 質量 | MS型:約85kg M型:約75kg S型:約69kg F型:約69kg |
| 通路幅 | 600mm/900mm |
| 電源・電圧 | AC100V±10% 50/60Hz |
| 消費電力 (瞬時、オプションは除く) | 待機時:50W 動作時:160W ※M型の場合 |
| 使用環境条件 | 使用温度:0℃〜40℃ 相対湿度:35%〜85% |
| 処理能力 | 認証有 約30人/分 実測平均値 約60人/分 |
| 認証媒体 | ・非接触型リーダー (ICカード/QRコード/1次元バーコード/生体認証等) |
| オプション カスタマイズ | ・リモートコントローラー ・トップパネルディスプレイ ・火災報知機連動 ・通路版(550mm幅/900mm幅) ・フラッパーズカスタマイズ ・保温ヒーター(寒冷地仕様) |
| 防塵・防滴機能 (IP55相当) | ○ |
特長
液晶モニター搭載で、複数人入場時の人数のカウントやエラー表記など様々な表現が可能です。
ベース板にLEDを設置。暗い所でも足元が目立ち、転倒を防止します。
従来のゲートでは出せなかった様々な入退場音を流せます。施設様が用意した音源にも対応可能です。
オプションで内側のステンレスをより高級感のあるブラックコーティングステンレスに変更可能です。
ハイフラップ化で飛び越えによる不正侵入を防ぎます。
施設に合わせたデザインのシートを貼り付けることで、空間に溶け込ませることが可能です。
導入事例
よくあるご質問
Qセキュリティゲートや入退場ゲート管理システムとは何ですか?
各種施設の利用料金徴収、入退場者数のチェック・制限、データの取得・管理、不正利用の防止・抑止、セキュリティ強化などが実現できる券売機やゲートを活用したシステムです。
また、システム導入によりレイバーコスト(人件費)も抑制できるので、施設運営の省力化・効率化に繋がります。
Q故障した場合の対応は?
全国主要箇所にサービス拠点がありオンサイト対応が可能です。万が一の際にも安心な保守契約プランをご用意しています。また、都度対応するスポット対応も承ります。詳細は、担当営業よりご案内いたします。
Qセキュリティゲート・入退場ゲート管理システムでどのようなデータが取れますか?
売上・人数・時間など集計・分析に必要なデータはもちろん、大人・子供・回数券・年間パスポートなど種別毎のデータ管理もできます。
関連製品 & 周辺機器
-

Fゲート(エフゲート)
スタイリッシュなデザインのフラッパーゲート。 両サイドにフラップを備えた筐体を用い、省スペースで複数通路の設置が可 能です。レジャー施設やアミューズメント施設に多数の導入実績があります。 ラッピング加工などで施設の雰囲気に合わせることも可能です。
- フラッパーゲート
- クラウド化
- 高セキュリティ
- 屋外・半屋外設置
- カスタマイズ可
- 車いす通行可
-

ロングゲート
公営競技場向けに開発されたゲート。 双方向運用時はダブルフラップ構造を採用。 全国公営競技場に多数の実績がございます。
- フラッパーゲート
- 屋外・半屋外設置
- カスタマイズ可
- 車いす通行可
-

eゲート(イーゲート)
スペースに左右されないフラップゲートのエントリーモデル。 大型ゲートに比べ格段に小さなボディを実現、わずかなスペースにも設置可能です。
- フラッパーゲート
- クラウド化
- 屋外・半屋外設置
- 小スペース
- カスタマイズ可
- 車いす通行可



